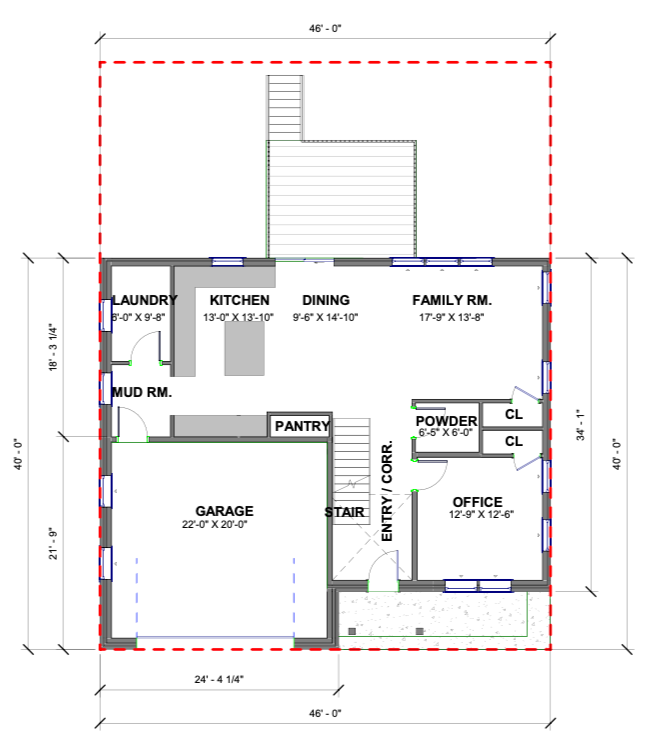
Ivy Model2,600 Sqft | 4 Bedrooms | 2.5 Bathrooms View fullsize View fullsize View fullsize View fullsize